Fogline House

LOCATION
Woodside, CA

TYPE
Interior Remodel, Addition,
Structural Intervention

SIZE
2,995 sq ft

SERVICES
Architecture, Interiors,
Construction Administration

STATUS
Completed March 2023

STRUCTURAL ENGINEER
BKG Structural Engineers

BUILDER
J.O. Construction

PHOTOGRAPHY
Lucid Sound & Picture

Nestled high in the redwoods with framed views of the San Francisco Bay, this adobe brick home had strong bones but lacked comfort, natural light, and modern performance. Our renovation preserved the structure’s earthy character while opening to its surroundings and adapting the interior to meet the needs of a growing family.

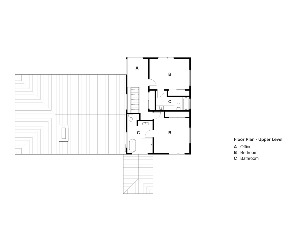
The floor plan was thoughtfully reconfigured to create a more functional and connected home. Bedrooms were reimagined with ensuite bathrooms for added privacy and ease, while the kitchen and dining areas were joined to foster gathering and conversation. A media room was tucked away for quiet retreat, balancing shared and private spaces. Deep roof overhangs were trimmed back to welcome in daylight, interior walls removed to create better flow, and the roof assembly upgraded with exterior insulation, preserving the original tongue-and-groove ceiling from within.

To meet Wildland Urban Interface (WUI) requirements, the home was outfitted with cement board siding, a standing seam metal roof, and fire-resistant detailing. Radiant floor heating was added throughout, improving thermal comfort and efficiency. The renovation also introduced custom elements, from a floating steel staircase and modern railings to a handcrafted barn door and bespoke details that reflect the family’s minimalist aesthetic. Interior finishes celebrate the authenticity of natural materials - steel, stone, and glass - balanced with reclaimed wood ceilings salvaged from old water tanks on the property. Once dark and drafty, the home is now a warm, resilient refuge with a grounded sense of place.

Previous
Previous

Haven Compound

Next
Next

The Lookout