Haven Compound

LOCATION
Santa Cruz, CA

TYPE
Renovation, Addition, Retrofit, ADU

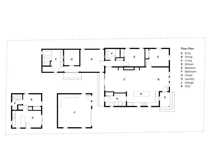
SIZE
House: 1,768 sq ft
ADU: 375 sq ft
Garage: 421 sq ft

SERVICES
Architecture & Interior Design, Permitting, Construction Administration

STATUS
Completion September 2024

STRUCTURAL ENGINEER
Cascadia Engineering, Inc.

BUILDER
Cutler Construction

PHOTOGRAPHY
Lucid Sound & Picture

This whole-house remodel transformed an original beach bungalow into a bright, modern, multi-generational retreat. The main house was taken down to the studs and completely reconfigured, with a vaulted open-plan living space at its heart. A new addition houses the primary suite, complete with a spa-inspired bathroom designed for daily retreat.

To support the clients’ vision for shared but independent living, a compact ADU was tucked into the back of the property—connected to a central courtyard yet carefully placed for privacy. Throughout the home, the clients infused a warm, Bohemian style that brings color, texture, and a personal touch to the clean-lined architecture.

Behind the relaxed feel is a robust layer of performance and resilience. The home includes an energy recovery ventilation (ERV) system for continuous fresh air, radiant heating throughout, and a high-efficiency heat pump mini split system in the ADU. Rigid insulation over the roof and a non-vented, eave-free assembly make the home not only comfortable year-round, but also WUI-compliant and more resistant to fire and smoke—an important consideration even in an urban setting.

Previous
Previous

Hilltop Home

Next
Next

Fogline House