Highpoint Retreat

LOCATION
Powder Mountain, UT

TYPE
Single Family Home

SIZE
5,194 sq ft

SERVICES
Construction Documents,
Project Management

STATUS
Completed January 2025

STRUCTURAL ENGINEER
IMEG

BUILDER
Big Canyon Homes, Inc.

PHOTOGRAPHY
Elizabeth Carababas

COLLABORATION
RKD Architects

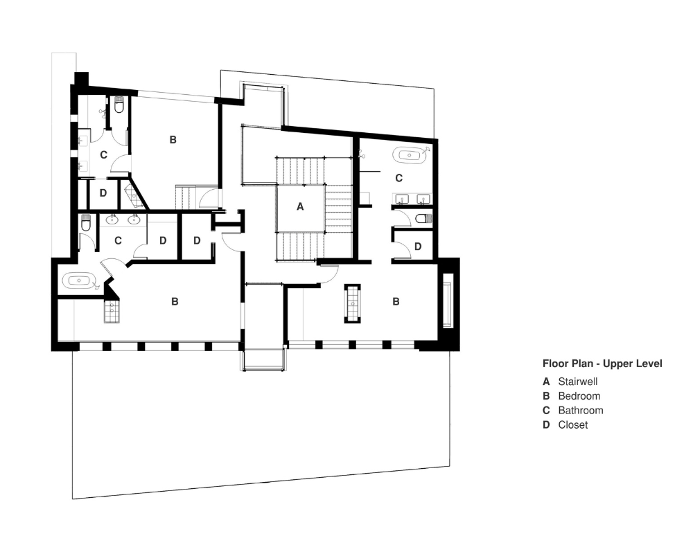
This ski-in, ski-out retreat designed by RKD Architects offers sweeping views of the Wasatch Mountains. Classic materials of glass, steel and stone the central axis pulls through the space. Designed for both comfort and connection, the home features three private bedroom suites and a spacious bunk room, ideal for hosting family and friends. The open living and kitchen area creates a natural gathering space for entertaining, while the hot tub and downstairs media room provide the perfect balance of relaxation and recreation.

Previous
Previous

Stacked Studio

Next
Next

Regenerative California